泥沙分離機(洗砂機)—原理、尺寸圖與規格表

作業流程與材料配置
砂由進料震動篩被水沖洗與水合一通過 PU 保護柵欄(開口 30mm)進入儲料槽(B)。水位控制是由一個浮筒閥(M)(安裝于儲砂桶槽內自動控制),若水位不足則由回收水槽內之水補充。
砂漿由抽砂泵(C)經由管子(D)抽出,其流向為固定沿切線方向進入旋風器,產生一種渦旋(F)之效果。砂顆粒粗於 #200 號篩之料, 被離心力拉至圓錐桶之內壁成為濃縮之砂漿進入噴嘴(G)噴下,再進入脫水震動篩網脫水至較幹之砂進入斜槽(P),再由輸送帶將其送出。
污水(含淤泥、黏土)直接由旋風器後方進入溢流管(H)再流入旋風器下方之水櫃再由排水管(L)排出。
脫水震動篩是使用一種反斜坡之脫水板,間隙開口為 0.3 至 1.0mm,有兩台震動馬達產生之線性震動,使砂床(砂餅)直接向上坡爬至斜槽(P),過濾之水被回收到儲料槽(B),清潔和脫水之砂其濕度為 25%~30%(可調整)。
脫水板是由聚氨酯基(PU)構成的,抽砂泵的磨耗部份採用硬材質(高鉻鋼)所構成,旋流器依砂的耗蝕性不同可以有不同的選擇(耐磨橡膠、高鉻鋼或是陶瓷),也就是說此洗砂機配備有防磨耗之保護材料(壽命視原料之耗蝕性而有所不同)。
回收量及效率分析
泥沙分離機為回收 #200 以上的細砂(效率約 90%)。一般水車的流失量約有產量的 5%,因此可回收的砂約有 4.5%。以砂產量每天 500 立方公尺 來計算,每天可回收量即有 22.5 立方公尺;以砂的價格 / 立方公尺計算,每天可增加 的利潤,因此很快就可以回收投資的金額,並為業者帶來可觀的利潤。
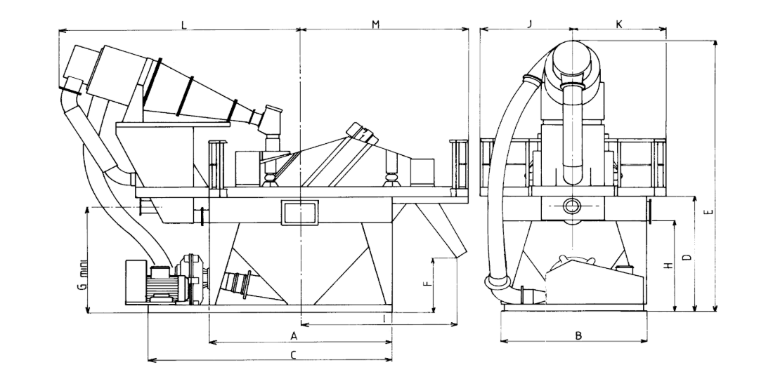
尺寸圖

規格及尺寸
型式 model |
motor | pump | 脫水震動篩 | 尺寸 | 重量 噸 |
||||||||||||||
---|---|---|---|---|---|---|---|---|---|---|---|---|---|---|---|---|---|---|---|
管徑 pipe |
馬力 HP |
Type | 尺寸 Type |
面積 | A | B | C | D | E | F | G mini |
H | I | J | K | L | M | ||
70x20 | 2 | 20 | 3/2C-AH | 08x20 | 1.6 | 2180 | 1510 | 3310 | 1675 | 4000 | 980 | 1536 | 1250 | 1627 | 1150 | 1150 | 2245 | 2045 | 4.1 |
300x100 | 6" | 60 | 150 E-L | 12x27 | 3.6 | 3300 | 2280 | 5580 | 2000 | 4400 | 1160 | 1700 | 1330 | 2545 | 1405 | 1405 | 3750 | 2600 | 5.8 |
500x100 | 6" | 75 | 8/6E-AH | 12x27 | 3.6 | 3300 | 2280 | 5580 | 2000 | 4400 | 1160 | 1700 | 1330 | 2545 | 1405 | 1405 | 3750 | 2600 | 7.2 |
800x200 | 10” | 150 | 10/8E-M | 18x33 | 6 | 3300 | 2280 | 6080 | 2000 | 4400 | 1160 | 1700 | 1330 | 2545 | 1655 | 1655 | 4000 | 2600 | 11.5 |
註:表格為你提供之數值整理,若需單位轉換(mm ⇄ inch、t ⇄ kg)或新增欄位,可再告訴我。